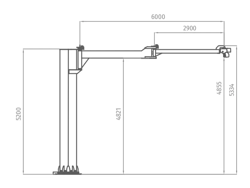
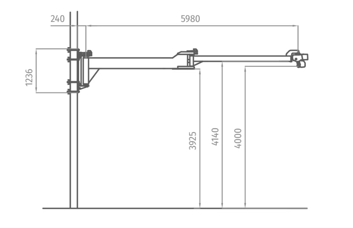
CML-B6-500
CML-B6-500 COMMON DATA
The CML-B6-500 lifting system is an articulated jib crane designed to lift loads of up to 500 kg. Its manually rotating arm makes it an ideal tool for production processes requiring high workflow cadence.
Thanks to its articulated design, this crane can easily maneuver between columns or in confined spaces, providing a versatile solution for various setups. When combined with a vacuum system, it becomes the perfect choice for work areas handling loads of up to 400 kg.
From the Tecnocat vacuum system controls, it is possible to manage the hoist’s movements, allowing precise load lifting and lowering at slow or fast speeds, depending on the process requirements.
The system offers multiple installation options, either mounted on a dedicated Tecnocat column (CL) specifically designed for this purpose or fixed to an existing structural column (WA), provided it meets the technical requirements to ensure safe and functional support.


CML-B6-500 (MP) METAL PLATE

CML-B6-500 (WA) WALL
