NOMAD-400
NOMAD-400 DATA
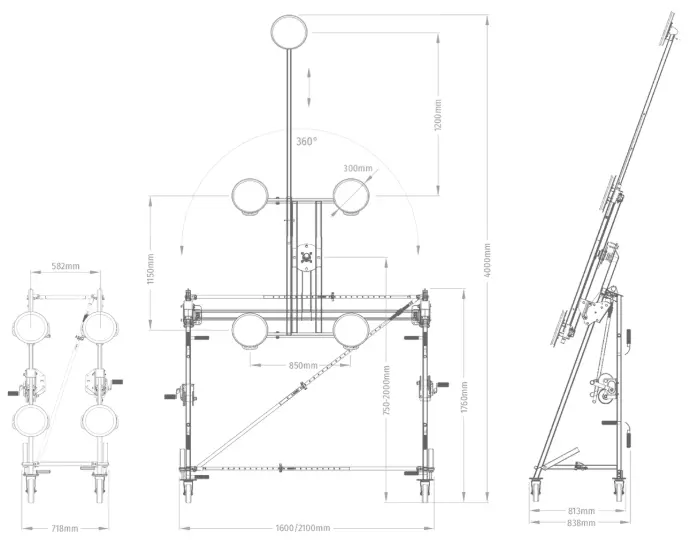
Manual trolley specially designed for glazing on site or for handling glass in the factory.
It is designed in order tpo be handled by only two operators and it is capable to load weights up to 400Kg.
It is possible to handle all kinds of glass, framed windows, framed doors, etc., for glass installations in shop windows, glass railings, doors and windows in offices and homes, etc.
It has 360° manual rotation and its reduced width helps walking through doors.
Nomad 400 is adjustable in multiple measures to install small glass and is completely removable so that it can be easily transported.


