XE2-1500G-A I XE2-1500G-C I XE2-1500G-E I XE2-1500G+4 CURVED KIT
XE2-1500G-A I XE2-1500G-C I XE2-1500G-E I XE2-1500G + 4 KIT CURVO I XE2-1500 COMMON DATA
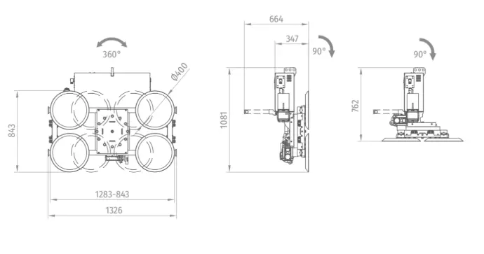
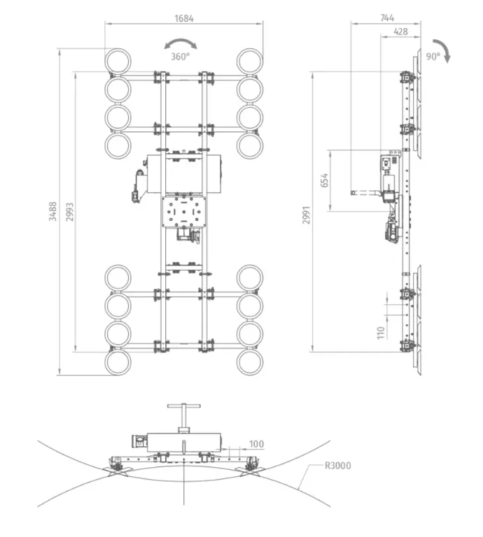
This is a totally modular equipment and can assemble different grids for glass of different weights and dimensions up to 2,500kg. It also supports curved glass grills, in other words, with a single unit you can work with almost any demand and specification. It has a double safety vacuum circuit for the handling and installation of glass on site, according to the EN-13155 standard.
Battery-operated and can also be powered from the main power supply, it has a 360° endless electric motorized rotation capacity and 0°-90° hydraulic motorized tilting, both of which are very useful for daily on-site installation work and can be used to compensate for any movement required in a very convenient, safe and quick manner.
It incorporates new digital control modules in line with the Industry 4.0. It has battery and vacuum level indicators with luminous and acoustic alarm. Through an app you can obtain information about the equipment, diagnostics and alarms.




OPTIONAL
- FU-P COVERS
- MI-14A WIRELESS PUSHBUTTON CONTROLLER
- AL-BOT PUSHBUTTON 10m. WIRE
- MBPS03 .1 EXTERNAL AC POWER SUPPLY BOX







