XE1-1500
Ventosa versátil para instalaciones de vidrio estándar y gran formato
XE1-1500G (A-B-C-Curvo)
XE1-1500G (A-B-C-Curvo)
Ventosa versátil para instalaciones de vidrio estándar y gran formato
La XE1-1500G permite trabajar con una amplia variedad de formatos, desde aplicaciones estándar hasta proyectos con vidrios de mayor tamaño y peso, ofreciendo una solución equilibrada entre capacidad y maniobrabilidad.
Su sistema modular de parrillas permite adaptarse tanto a vidrio plano como curvo, ampliando las posibilidades de uso en diferentes tipos de instalación.
Incorpora movimientos totalmente motorizados de rotación y basculación, lo que facilita una manipulación precisa, segura y eficiente durante todo el proceso.
Además, su diseño robusto y funcional está preparado para trabajar en condiciones reales de obra, garantizando fiabilidad y durabilidad en el uso diario.
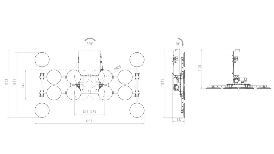
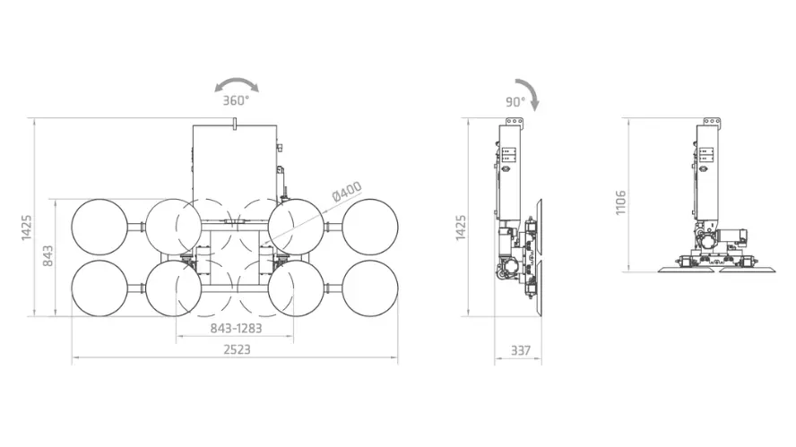
CAPACIDAD DE CARGA PLANO
Max 1500 Kg
ROTACIÓN
Motorizada 360º
TARA MÍNIMA
180 Kg
SISTEMA DE VACÍO
Doble circuito independiente EN-13155
BASCULACIÓN
Motorizada 90º
FUNCIONAMIENTO
A batería recargable
CONTROL
Indicadores digitales de vacío
CAPACIDAD DE CARGA CURVO
Max 800 Kg
La XE1-1500G permite trabajar con una amplia variedad de formatos, desde aplicaciones estándar hasta proyectos con vidrios de mayor tamaño y peso, ofreciendo una solución equilibrada entre capacidad y maniobrabilidad.
Su sistema modular de parrillas permite adaptarse tanto a vidrio plano como curvo, ampliando las posibilidades de uso en diferentes tipos de instalación.
Incorpora movimientos totalmente motorizados de rotación y basculación, lo que facilita una manipulación precisa, segura y eficiente durante todo el proceso.
Además, su diseño robusto y funcional está preparado para trabajar en condiciones reales de obra, garantizando fiabilidad y durabilidad en el uso diario.
SISTEMA DE VACÍO
Doble circuito independiente EN-13155
CONTROL
Indicadores digitales de vacío
TARA MÍNIMA
180 Kg
CAPACIDAD DE CARGA PLANO
Max 1.500 Kg
ROTACIÓN
Motorizada 360º
FUNCIONAMIENTO
A batería recargable
CAPACIDAD DE CARGA CURVO
Max 800 Kg
BASCULACIÓN
Motorizada 90º
Ventajas de la XE1-1500
☑ Versatilidad para trabajar con vidrio estándar y gran formato
☑ Capacidad de carga hasta 1.500 kg
☑ Opción de parrilla para vidrio plano y curvo
☑ Todos los movimientos motorizados para mayor precisión
☑ Mayor control en la manipulación e instalación
☑ Sistema modular adaptable a cada proyecto
☑ Diseño robusto para uso intensivo en obra
Solicitar información
Características técnicas
Ventajas de la XE1-1500
☑ Versatilidad para trabajar con vidrio estándar y gran formato
☑ Capacidad de carga hasta 1.500 kg
☑ Opción de parrilla para vidrio plano y curvo
☑ Sistema modular adaptable a distintos formatos de vidrio
☑ Todos los movimientos motorizados para mayor precisión
☑ Mayor control en la manipulación e instalación
☑ Diseño robusto para uso intensivo en obra
Características técnicas
Planos técnicos
Planos técnicos
XE1-1500G-B
Con extensiones hasta 8 platos
C.Carga máxima 1.000 kg
Tara mínima 210 Kg
XE1-1500G-C
Con extensiones hasta 12 platos
C.Carga máxima 1.500 kg
Tara mínima 270 Kg
XE1-1500G + 2 Curvo
Con 2 kits de curvo
C.Carga máxima 400 kg
Tara mínima 210 Kg
XE1-1500G + 4 Curvo
Con 4 kits de curvo
C.Carga máxima 800 kg
Tara mínima 285 Kg
XE1-1500G-B
Con extensiones hasta 8 platos
C.Carga máxima 1.000 kg
Tara mínima 210 Kg
XE1-1500G-C
Con extensiones hasta 12 platos
C.Carga máxima 1.500 kg
Tara mínima 270 Kg
XE1-1500G + 2 Curvo
Con 2 kits de curvo
C.Carga máxima 400 kg
Tara mínima 210 Kg
XE1-1500G + 4 Curvo
Con 4 kits de curvo
C.Carga máxima 800 kg
Tara mínima 285 Kg
Complementos
Complementos
Incluido
Cargador de batería
Caja metálica
Soporte de descanso
Botonera con cable de 3 m
Opcionales
FU-P Fundas protectoras
MI-14A Control remoto inalámbrico
AL-BOT Pulsador con cable de 10 m
BPS03 .1 Caja de alimentación externa
Incluido
Cargador de batería
Soporte de descanso
Caja metálica
Botonera con cable de 3 m
Opcionales
PI-XE1 Piston basculante hidráulico
BPS03 .1 Caja de alimentación externa
MI-04A Control remoto inalámbrico
4AL -XL3 Extensiones desmontables con ventosas
Solicita información o presupuesto para la XE1-1500
Te enviamos toda la información del equipo y te asesoramos sin compromiso para tu proyecto.









